历史建筑时尚复兴 奥克兰TRA办公空间设计

TRA Auckland Offices by Jose Gutierrez

整理:时尚办公网 | 发布时间:2015年10月18日
历史建筑时尚复兴 奥克兰TRA办公空间设计
项目设计:Jose Gutierrez
项目地点:新西兰 奥克兰
项目面积:4,305 平方英尺
项目时间:2015年
设计团队:Jose Gutierrez, Anas Hafeedh, Nicholas Genever
摄影:Jeremy Toth
Tags:调研评估科技公司、百年老建筑改造、完整保留建筑历史特色、以捕捉信息、处理信息这两个关键点为设计切入点,构筑一个三维空间形态、镜面墙
历史建筑时尚复兴 奥克兰TRA办公空间设计

TRA是调研与评估行业领域里的领军者。他们通过收集和分析消费者的信息,为客户提供真知灼见寻找驱动企业快速增长的新途径。Jose Gutierrez 设计团队以 TRA 捕捉信息、处理信息这两个关键点为设计切入点,以此构筑一个三维空间形态,全新诠释TRA位于奥克兰的办公空间。

历史建筑时尚复兴 奥克兰TRA办公空间设计

这是一幢位于奥克兰港口的百年历史老建筑,办公室位于建筑的顶层。双重正脊屋顶的顶层阁楼,中心最高点可达七米。年久失修的木桁架构造承载着岁月的沧桑,有些地方还依稀可辨曾被大火损坏的痕迹。斑驳的建筑镌刻着时间的记忆,沉淀的岁月之美本身就是一首永恒的美丽诗篇。设计团队保留老建筑的岁月印痕,将其转化成空间中最为震撼的艺术之美。

历史建筑时尚复兴 奥克兰TRA办公空间设计

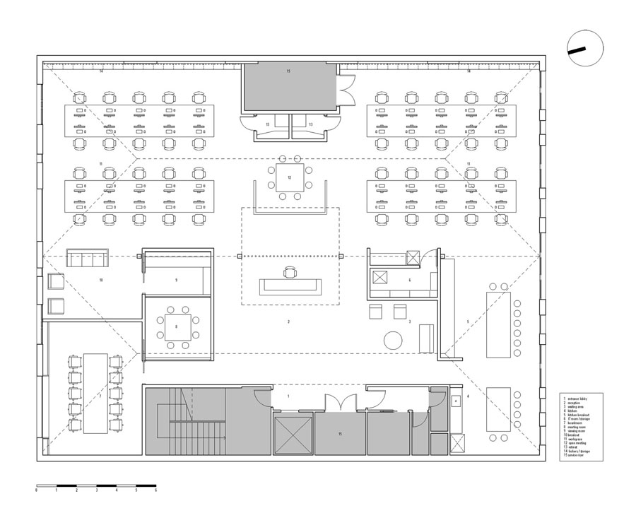
容纳40人办公的开放办公场所,包括一系列小会议室、一间大会议室以及员工的茶歇休闲区。为了不破坏建筑历史风貌,新的空间体量以原有构架体系巧妙嵌入。新作的空间表皮覆以镜面板,映射出周边陈旧而褪色的建筑元件,以此而模糊自身的存在。

历史建筑时尚复兴 奥克兰TRA办公空间设计

作为品牌重塑的一部分,客户邀请艺术家Paul Hartigan为他们设计了一款公司名称缩写的“TRA”霓虹灯标志。设计团队顺势将霓虹灯的元素再加以发挥,在室内的中心设计了一道如源源不断的资讯信息流的线形霓虹灯光柱,将人们的视线引向高高的屋顶,似乎要穿越到无尽的云端。

历史建筑时尚复兴 奥克兰TRA办公空间设计

陈旧的木地板年久失修,有些已严重损坏无法修补。与其寻找新的替代品,不如直接选用染色做旧处理的柳桉夹板铺在表面。整个地面全部以1.2x2.4米的柳桉夹板交错重复排列,由此构筑了一个井然有序的开阔空间维度。墙体镜面板采用与地面相同的规格尺寸,并且精准对齐墙面与地面的材质拼缝,再一次强化有序与精准的特质。

历史建筑时尚复兴 奥克兰TRA办公空间设计

开放工作区的背景墙,采用竖条钢管嵌入黑色吸音材质。中间嵌入一道白色员工私人储物柜,就像是一组浮动的数据嵌入垂直的钢结构造型里。储物柜门圆形开孔造型加强了整体墙面的形式感,同时圆孔也是储物柜的拉手。圆孔造型元素同样出现在厨房的柜门上。

历史建筑时尚复兴 奥克兰TRA办公空间设计

在开放办公的中心,一个由镜面装饰的空间体量成为这里的背景墙。背景墙后面暗藏两个私密电话室或专注工作的私密小空间。进入这个私密领地就像时光暂停,外界的纷扰都被阻隔于门外。

历史建筑时尚复兴 奥克兰TRA办公空间设计

见证百年风雨的古老建筑,在设计团队的精心打造后,继续书写着它的历史,并化身为时尚工作新地标。

历史建筑时尚复兴 奥克兰TRA办公空间设计 历史建筑时尚复兴 奥克兰TRA办公空间设计 历史建筑时尚复兴 奥克兰TRA办公空间设计 历史建筑时尚复兴 奥克兰TRA办公空间设计 历史建筑时尚复兴 奥克兰TRA办公空间设计 历史建筑时尚复兴 奥克兰TRA办公空间设计 历史建筑时尚复兴 奥克兰TRA办公空间设计 历史建筑时尚复兴 奥克兰TRA办公空间设计 历史建筑时尚复兴 奥克兰TRA办公空间设计 历史建筑时尚复兴 奥克兰TRA办公空间设计 历史建筑时尚复兴 奥克兰TRA办公空间设计 历史建筑时尚复兴 奥克兰TRA办公空间设计 历史建筑时尚复兴 奥克兰TRA办公空间设计 历史建筑时尚复兴 奥克兰TRA办公空间设计 历史建筑时尚复兴 奥克兰TRA办公空间设计

编译:时尚办公网,转载请注明。