时尚工业美学 德国建筑设计公司Scope办公设计欣赏

SCOPE Offices Stuttgart By SCOPE Architekten GmbH

整理:时尚办公网 | 发布时间:2019年11月05日
时尚工业美学 德国建筑设计公司Scope办公设计欣赏
设计:SCOPE Architekten GmbH
地址:德国 斯图加特
面积:550平方米(30人)
时间:2018-2019年
摄影:Zooey Braun
Tags:设计,老建筑、开放协作灵动、肌理材质色彩混搭、黑白灰、粗犷与时尚的工业美学

当一家建筑公司设计自己的办公空间时,需要在美学和文化上遵循自己的价值理念去映射文化的自我理解,创建一种认同感。这座建于五十年代的建筑被证明是一项值得挑战的工程。SCOPE设计团队以充满活力的前沿设计表明传统的办公室设计已完成了它们的使命。

时尚工业美学 德国建筑设计公司Scope办公设计欣赏

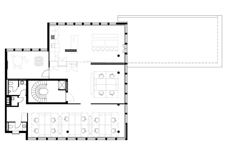
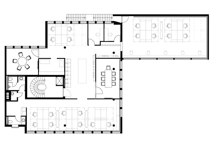
位于斯图加特西部的办公室共两个楼层约550平方米。由建筑师、室内设计师和网络设计师共同组成的团队,根据公司自身的需求和工作流程,将空间规划为协作区域和开放工作空间这样的基本布局。后者配备了升降桌和定制空间隔断,以提供视觉私密性和舒适的声学环境。三间会议室的家具组合形式也各不相同,便于响应各种会议形式。

时尚工业美学 德国建筑设计公司Scope办公设计欣赏 时尚工业美学 德国建筑设计公司Scope办公设计欣赏 时尚工业美学 德国建筑设计公司Scope办公设计欣赏 时尚工业美学 德国建筑设计公司Scope办公设计欣赏 时尚工业美学 德国建筑设计公司Scope办公设计欣赏 时尚工业美学 德国建筑设计公司Scope办公设计欣赏

办公室以宽敞的休闲厨房为核心布局,通过一扇巨大的滑动门(由黑色、上釉的中密度纤维板制成)向接待处开放。大家不仅在这里共同享用午餐,也在这里分享各种创意灵感。此外还设有材料间和光线充足的工作室。

时尚工业美学 德国建筑设计公司Scope办公设计欣赏

不同肌理、材质和颜色的混搭拼贴风呈现出精致而时尚的空间质感,同时也映射出文化的多样性和认同感。开放区域传达出粗犷的工业美学质感,以橡木和黑色中密度纤维板制作的高品质家具与环境相得益彰。

时尚工业美学 德国建筑设计公司Scope办公设计欣赏 时尚工业美学 德国建筑设计公司Scope办公设计欣赏 时尚工业美学 德国建筑设计公司Scope办公设计欣赏 时尚工业美学 德国建筑设计公司Scope办公设计欣赏

黑色、灰色和白色构建了一个柔和的空间基调。以所在街道名称为灵感的玫瑰图形设计,与绿色、钴蓝色、暗粉色和薄荷色修饰的墙壁一样,为空间增添了一种俏皮的感觉。透明闪亮的窗帘与哑光的家具表面形成鲜明的对比,也为简约的空间增添了一抹温柔与妩媚。

时尚工业美学 德国建筑设计公司Scope办公设计欣赏 时尚工业美学 德国建筑设计公司Scope办公设计欣赏 时尚工业美学 德国建筑设计公司Scope办公设计欣赏

多元的材质肌理与色彩的混搭也渗入到休闲厨房的美学表达中,为员工与访客营造了一个友好温馨的交流氛围,让他们在一起享受美味烹调时光,或沉醉于清晨的咖啡醇香中。

时尚工业美学 德国建筑设计公司Scope办公设计欣赏 时尚工业美学 德国建筑设计公司Scope办公设计欣赏 时尚工业美学 德国建筑设计公司Scope办公设计欣赏 时尚工业美学 德国建筑设计公司Scope办公设计欣赏

本案特色家具应用——

Stool-Tool,来自品牌vitra。类似台阶状的卡萌造形,将座与桌融合在一起的有趣设计,可以随心所欲、尽你所想去使用这款坐具。书桌状的靠背可以作为一个小工作台或存放物品。

时尚工业美学 德国建筑设计公司Scope办公设计欣赏

编译:时尚办公网,转载请注明。