墨西哥Leonali办公楼:老建筑的循环再利用

Leonali Technical Data Mexico By Dionne Arquitectos

供稿:Dionne Arquitectos | 发布时间:2025年10月18日
墨西哥Leonali办公楼:老建筑的循环再利用
设计:Dionne Arquitectos
地址:墨西哥 阿特利斯科
面积:644 平方米
时间:2024年
摄影:Fred Dionne
Tags:科技,老工厂改造、循环利用、开放协作、自然光、亲生物设计、灵活高效、统一视觉、创意舒适

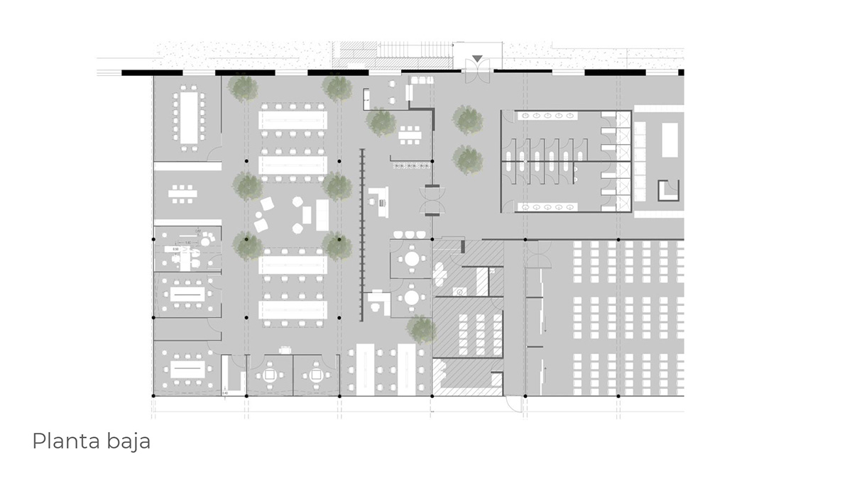
Leonali办公楼项目:一座注重空间与材料循环利用的环保办公建筑。本项目是一项注重环保责任的办公建筑计划,核心在于对空间与材料的循环利用和再设计。项目选址于一栋上世纪上半叶建造的旧纺织厂内,旨在重新激活这座废弃场所,赋予其全新的空间本质。

墨西哥Leonali办公楼:老建筑的循环再利用 墨西哥Leonali办公楼:老建筑的循环再利用 墨西哥Leonali办公楼:老建筑的循环再利用

Dionne Arquitecto设计团队充分利用和保留了工厂的原始结构,并对建筑进行改造以适应新的使用功能、以及营造全新的内部氛围。在工厂内部,设计打造了开放式平面布局,并力求以最少的隔墙来划分不同功能区域。每个空间都设有窗户,以确保所有区域之间的渗透性与整体融合。

墨西哥Leonali办公楼:老建筑的循环再利用 墨西哥Leonali办公楼:老建筑的循环再利用 墨西哥Leonali办公楼:老建筑的循环再利用 墨西哥Leonali办公楼:老建筑的循环再利用 墨西哥Leonali办公楼:老建筑的循环再利用 墨西哥Leonali办公楼:老建筑的循环再利用

该办公楼注重比例与尺度,保留空间原有层高,并充分引入自然光线,以期尽可能减少人工照明的使用,从而营造出鼓励创意工作的舒适环境。

运用原始及天然状态的材料,奠定了空间的本质基调。隔间采用回收材料,如木质“托盘”进行分隔。钢结构柱体被用来构建内部框架,同时完好地保留了原有的外部墙体。

除生态理念外,该办公楼还秉持"开放式办公空间"概念,追求空间布局的灵活性与高效性。通过极致减少隔墙用量,打造出宽敞的工作区域与非正式会议空间,共同营造出愉悦的整体氛围。

墨西哥Leonali办公楼:老建筑的循环再利用 墨西哥Leonali办公楼:老建筑的循环再利用 墨西哥Leonali办公楼:老建筑的循环再利用 墨西哥Leonali办公楼:老建筑的循环再利用 墨西哥Leonali办公楼:老建筑的循环再利用 墨西哥Leonali办公楼:老建筑的循环再利用 墨西哥Leonali办公楼:老建筑的循环再利用 墨西哥Leonali办公楼:老建筑的循环再利用 墨西哥Leonali办公楼:老建筑的循环再利用 墨西哥Leonali办公楼:老建筑的循环再利用 墨西哥Leonali办公楼:老建筑的循环再利用 墨西哥Leonali办公楼:老建筑的循环再利用 墨西哥Leonali办公楼:老建筑的循环再利用

供稿:Dionne Arquitectos,来源:时尚办公网,转载请注明。