De Knoop Utrecht By Fokkema Partners
De Knoop, retied。在荷兰De Knoop,联结与相遇是永恒的主题,各功能区自如流转,生机在灵动设计中翩然绽放。自2018年首次呈现的独特设计美学,如今焕新升级以契合当代诉求——从曾经的食堂进阶为精品办公咖啡空间,从封闭地下室蜕变为社交引力场。
“De Knoop, retied。”不仅仅指字面上的重新打结,更是一个巧妙的概念,寓意着这个名为“De Knoop”(意为“绳结”)的空间经过重新设计和改造后,被赋予了新的联结、新的活力。本案由Fokkema Partners设计团队精彩呈现。
循着那一抹玫红箭标,让我们一起探寻De Knoop空间中灵动的巧思妙趣。
01/ 功能交融,邂逅随心
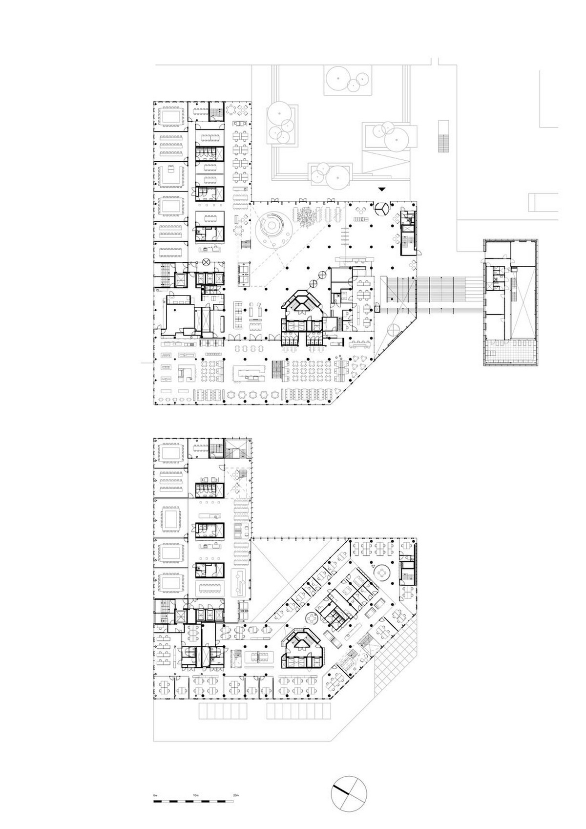
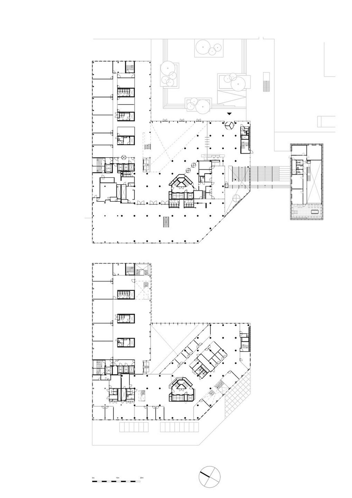
在De Knoop,各功能区巧妙交织,宛若天生契合。接待台不再隐于角落,而是醒目立于C位迎接众人,成为公共空间的自然延伸。曾隐于餐厅下方的楼层,如今化身为不容忽视的活力场域——这里激发不期而遇的互动:您可以在棋盘前对弈,或在乒乓桌旁畅谈。游戏于此化作媒介,让联结自然生发。
02/ 粉映生机,绿绘沉静
粉色是活力的象征。它指引方向,激发流动,点燃协作。从金属编织的标志性吧台,到以再生纽扣装饰的餐桌,设计在曲线与直线间游走,通过光影与材质浑然相连。活力,在软椅POEF、脉搏PULSE与激情PASSION中跃动——这三个以粉色霓虹点亮空间的词汇,象征着流动、能量与表达。可移动的座椅鼓励对空间的动态使用,而形态与色彩则为整体注入了韵律感。亲生物设计为空间平添一份平衡与宁静:一面葱郁的绿植墙宣示着蓬勃生机,声学板则如山水画卷般舒展,赋予空间以自然纵深。
粉色,是活力的象征。
它指引前行方向,激发流动意象,亦点燃协作火花。
03/ 向“再生”致意
餐厅吧台上“收获”(Oogst)一词,昔日意指时令蔬菜,而今俏皮的指向回收建材与再生家具。De Knoop已成为人们自觉相聚的所在——在此工作、相遇、彼此启迪。这处全国知名的交汇枢纽,正悄然书写属于自己的崭新篇章。
项目团队:CEPEZED、SPIE Building Solutions、Maasdam、Gielissen、Van Ginkel Groep Interieurbeplanting、RCreators
04/ 项目前身介绍
2018年,曾经的“Knoop中将军营”经改造后,蜕变为兼具现代感与透明度的政府办公地——“De Knoop”。它不仅承担着形象展示功能,更成为荷兰所有中央政府机构的中央会议中心。此次可持续改造由R creators联盟统筹设计、融资与建设,并涵盖长达二十年的运营维护服务。
建筑自身的私密性与独特韵味,与日光充盈的中庭形成了巧妙的平衡——这座中庭将空间延伸至宽敞的新建区域。建筑群外立面焕然一新,与城市肌理紧密融合,既符合高标准安保要求,也为(未来)功能调整预留了充分弹性。
树木与绿植融入设计中,将自然生机引入室内,而城市地标景观则成为空间导向的视觉锚点。会议中心内,围绕挑空区域与楼梯设置了开放式交流区,可容纳多达300人在会晤前后自由交流和联络。办公区的各个锚点设计,呼应着不同使用者的身份特征。设计深化工作甚至延伸至图形化导视系统的构建。Studio Drift艺术工作室为中庭咖啡吧上方的装置创作了令人着迷的独特设计。
前身为“Knoop军营”的建筑始建于1989年。这座位于乌得勒支中央车站附近的建筑曾长期作为荷兰皇家陆军的驻地。随着该区域向更具活力的都市风貌转型,昔日的军营被改造为一座通透的建筑,内部设有相互连通的办公空间,以及一个服务于国家的中央会议枢纽。(图片来源:Cepezed建筑事务所,Leon van Woerkom)

编译:时尚办公网,转载请注明。