比利时AG保险:再利用设计浪潮下的北欧极简美学

AG Insurance Charleroi By Ncbham

整理:时尚办公网 | 发布时间:2026年01月20日
比利时AG保险:再利用设计浪潮下的北欧极简美学
设计:Ncbham
设计团队:Izabela Pietrzak、Catia Lopes、Alexandra Mavroudaki、Mauro Brigham
地址:比利时 沙勒罗瓦
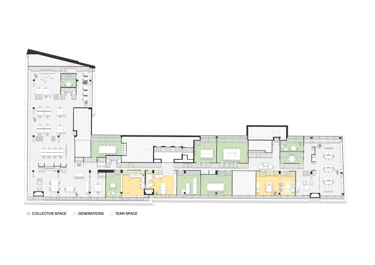
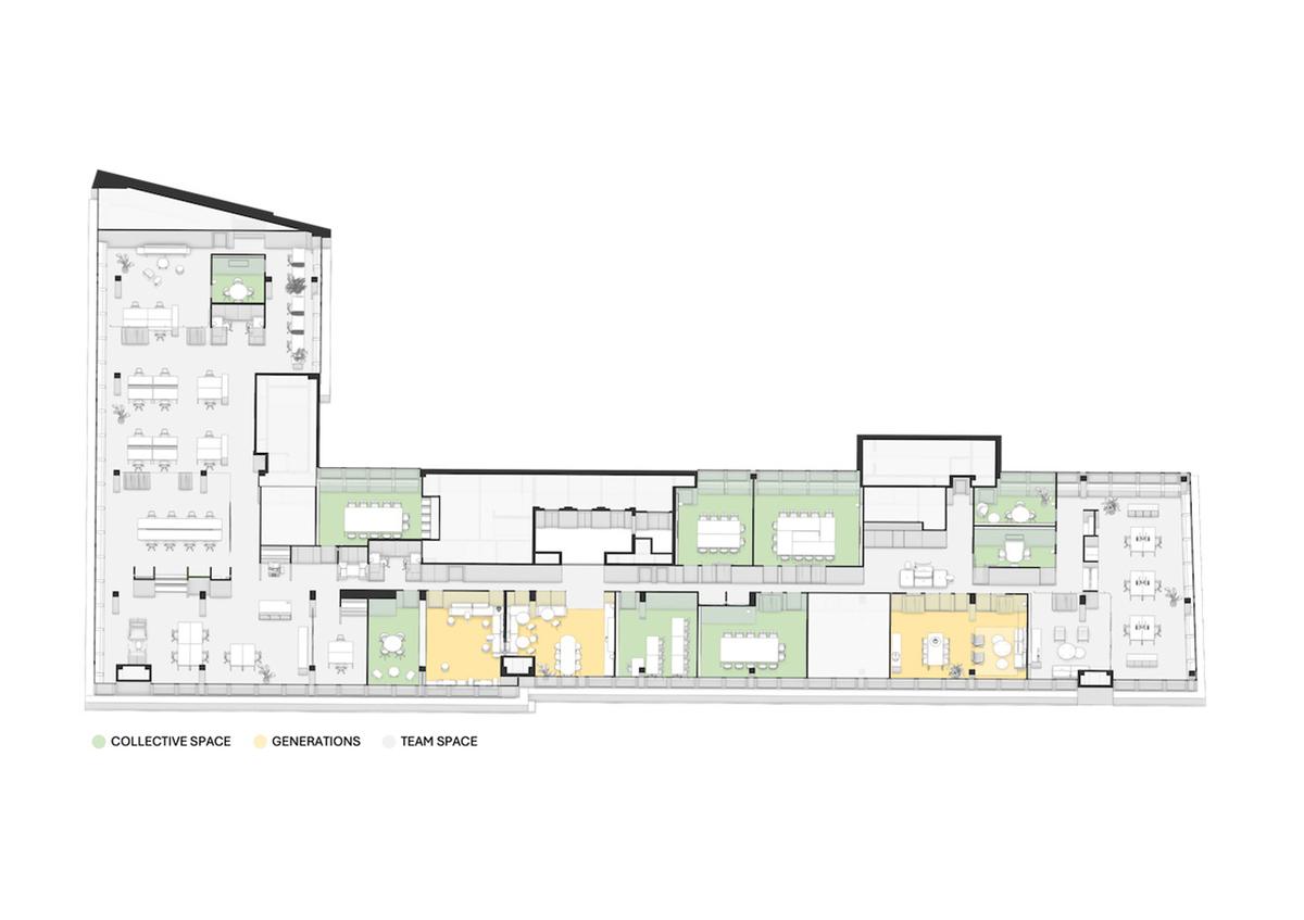
面积:约1,000 平方米
时间:2024年
摄影:Atelier minHuy
Tags:保险,升级改造、管理层、社区理念、可持续改造、地域特色、新旧融合、艺术介入、材质对话、再利用、灵活多元、氛围营造、互动体验、工业美学

秉承“重塑办公空间”的理念,本项目涉及对AG集团沙勒罗瓦办公楼中的三个办公楼层的翻新与创新。其中,第5层与第6层已在过去两年中投入使用;而近期竣工的第7层,则将管理层办公空间与标准层开放式平面布局中经过重构的空间类型相结合。

比利时AG保险:再利用设计浪潮下的北欧极简美学 比利时AG保险:再利用设计浪潮下的北欧极简美学

01/ 设计理念

AG Insurance是一家比利时保险公司,提供人寿保险和非人寿保险(汽车、火灾、意外、住院、民事责任及其他)以及补充养老金服务。本案是其位于沙勒罗瓦的办公楼局部改造项目。

根据AG保险集团全球设计白皮书:所有AG办公大楼的设计均以“AG社区”理念为基石,这一原则贯穿于空间组织的核心,同时设计亦可根据每个建筑所在地的独特城市环境灵活呼应场所语境。

在AG沙勒罗瓦办公楼中,一个显著特征是对天花、技术地板、隔断和家具等现有元素的精心再利用。这种可持续的设计手法塑造了空间独特的氛围与格调,新旧特征在此融合优化,形成令人耳目一新的独特建筑气质。

设计灵感根植于沙勒罗瓦特有的城市气质——环绕城市的自然景观与工业遗存共同构成其设计脉络。这些元素被凝练于精心构筑的氛围图景中,通过金属、混凝土等原生材质与自然中流动的有机形态达成微妙融合。

比利时AG保险:再利用设计浪潮下的北欧极简美学 比利时AG保险:再利用设计浪潮下的北欧极简美学 比利时AG保险:再利用设计浪潮下的北欧极简美学 比利时AG保险:再利用设计浪潮下的北欧极简美学 比利时AG保险:再利用设计浪潮下的北欧极简美学 比利时AG保险:再利用设计浪潮下的北欧极简美学 比利时AG保险:再利用设计浪潮下的北欧极简美学 比利时AG保险:再利用设计浪潮下的北欧极简美学 比利时AG保险:再利用设计浪潮下的北欧极简美学 比利时AG保险:再利用设计浪潮下的北欧极简美学 比利时AG保险:再利用设计浪潮下的北欧极简美学 比利时AG保险:再利用设计浪潮下的北欧极简美学 比利时AG保险:再利用设计浪潮下的北欧极简美学 比利时AG保险:再利用设计浪潮下的北欧极简美学 比利时AG保险:再利用设计浪潮下的北欧极简美学 比利时AG保险:再利用设计浪潮下的北欧极简美学

02/ 管理楼层的设计

第七层通过对管理区的重塑,从而从标准化工作楼层布局中脱颖而出,该区域在满足特定功能需求的同时,依然遵循统一的设计准则与空间组织原则。

在不损害设计理念完整性的前提下,设计团队对隐私需求、企业精神与空间舒适度进行了周密考量与平衡。

大部分家具被成功再利用、并融入到整体美学体系中,并辅以新增陈设与艺术家定制的专属装置作品,形成新旧交融的和谐空间。

比利时AG保险:再利用设计浪潮下的北欧极简美学 比利时AG保险:再利用设计浪潮下的北欧极简美学 比利时AG保险:再利用设计浪潮下的北欧极简美学 比利时AG保险:再利用设计浪潮下的北欧极简美学 比利时AG保险:再利用设计浪潮下的北欧极简美学

03/ 艺术融合

在沙勒罗瓦办公楼项目中,两位比利时艺术家以雕塑性语言丰富了空间的表现维度:卢·范·特·里特为五层和六层创作的艺术装置,赫马诺工作室为七层量身打造的设计作品。

两位艺术家皆将原始材料融入创作,其作品不仅可供静观,更邀请人们与之互动体验。例如卢·范·特·里特的金属三联装置,专为用户触发与操控而设计,让人们能够改变其几何构图。

而赫马诺工作室的作品则通过极简含蓄的手法,探索有机形态与建筑线条。其单色调作品运用沉稳的大地色系,引入质感肌理与尺度变化,为空间的环境氛围注入丰富层次。

比利时AG保险:再利用设计浪潮下的北欧极简美学 比利时AG保险:再利用设计浪潮下的北欧极简美学 比利时AG保险:再利用设计浪潮下的北欧极简美学 比利时AG保险:再利用设计浪潮下的北欧极简美学 比利时AG保险:再利用设计浪潮下的北欧极简美学 比利时AG保险:再利用设计浪潮下的北欧极简美学

改造前后场景对比——

比利时AG保险:再利用设计浪潮下的北欧极简美学 比利时AG保险:再利用设计浪潮下的北欧极简美学 比利时AG保险:再利用设计浪潮下的北欧极简美学

编译:时尚办公网,转载请注明。