DELO Derbent Coworking By Cartelle Design
该项目是DELO品牌旗下的第二家联合办公空间,由Cartelle Design团队操刀设计。设计团队从首店的美学基因中汲取灵感,却并未简单复刻,而是在延续品牌标识性设计语言的基础上,注入了更为鲜活、自由的创意表达。

空间保留了首店原始质感的水泥肌理、简洁明快的几何构成,以及沉稳中跳脱出亮色的色彩逻辑。然而,这一次,设计师大胆采用了更浓郁、更具张力的色彩组合——优雅的橙红与深邃的海蓝贯穿空间,与黑白抽象图形相互碰撞,在工业风的冷峻基调上,叠加出一层时尚而艺术化的视觉层次,使整个环境既延续了品牌的冷静气质,又散发出轻松愉悦、激发灵感的工作氛围。
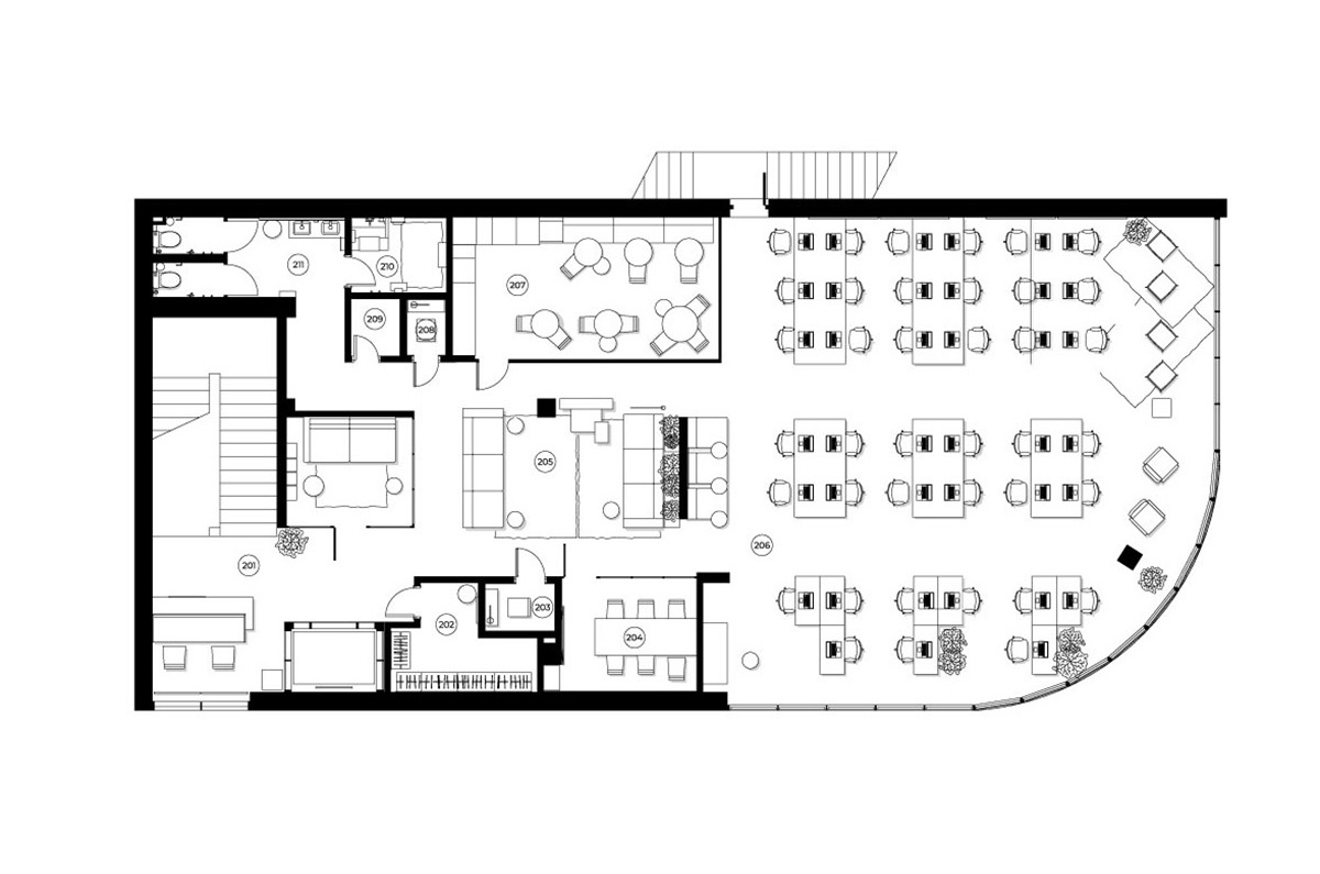
场所位于一栋四层建筑的二至四层。建筑的最大亮点是连续的带状全景采光窗,将自然光充分引入室内。二层光线最佳的区域被规划为开阔的开放式工作区,沿窗布置的工位最大化享受日光与视野;周围则点缀着多个独立办公室与会议室,兼顾隐私与协作需求。
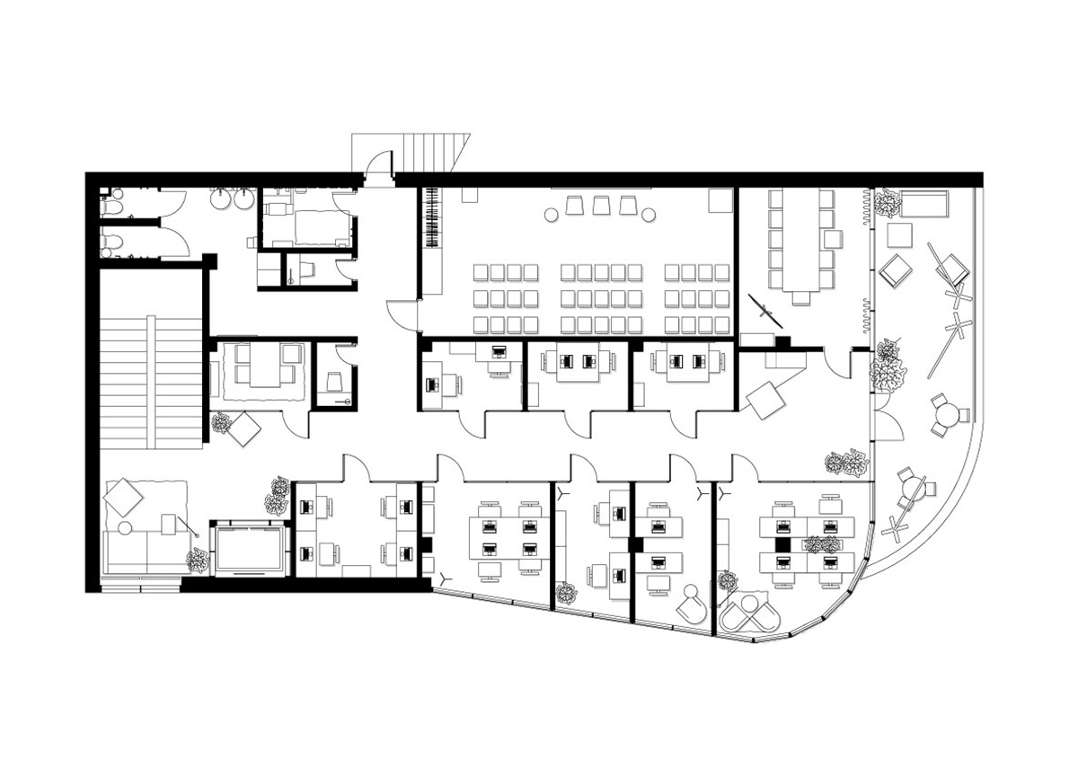
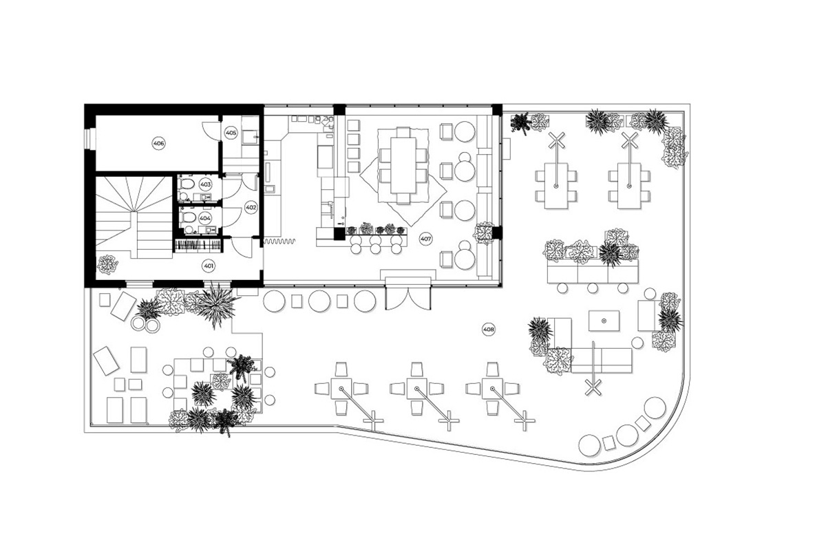
三层以2–4人规模的小型办公室为主,配有一间可满足团队会议或沙龙活动的会议室。四层则是休闲与社交枢纽,设有一处咖啡馆和连通室外的露台,既适合专注工作,也可用于放松交流,实现工作与生活的柔性过渡。
整体设计以黑白灰为基底,通过色彩与图形的巧妙介入,打破了传统办公空间的刻板印象,塑造出一个既契合年轻专业人士审美、又充满创意能量的工作社区。项目总面积818平方米,在理性布局与感性表达之间取得平衡,成为DELO品牌空间中又一具有标志性的“创意引力场”。
编译:时尚办公网,转载请注明。