Syscom Engineering索非亚办公室:蓝色美学

Syscom Engineering Offices Sofia By SOFT CASE Studio

整理:时尚办公网 | 发布时间:2026年01月08日
Syscom Engineering索非亚办公室:蓝色美学
设计:SOFT CASE STUDIO
地址:保加利亚 索菲亚
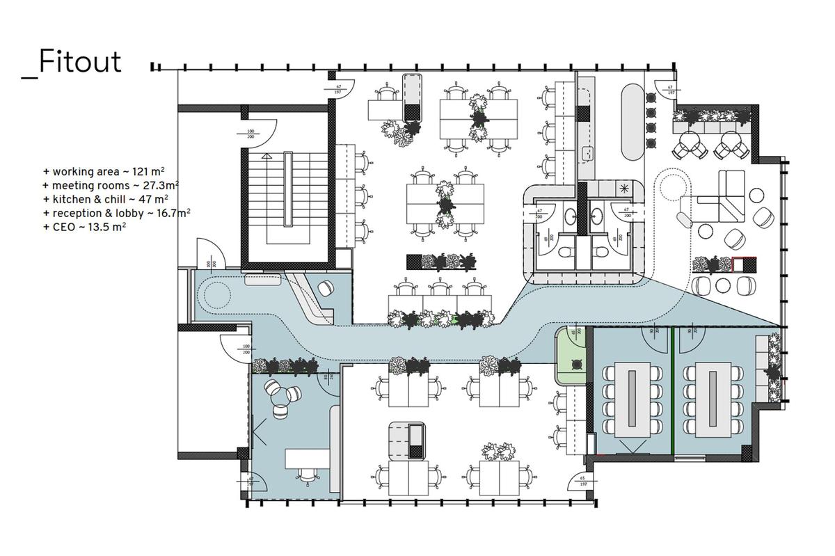
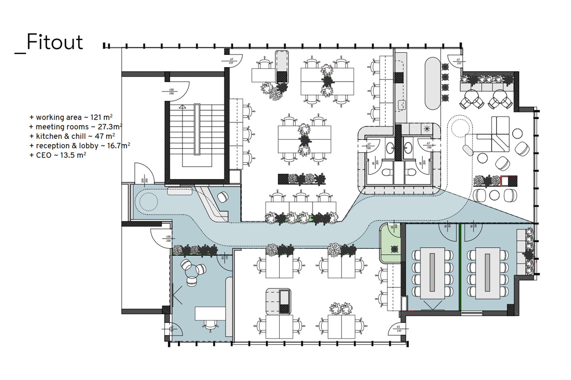
面积:225 平方米
时间:2024年
摄影:Minko Minev
Tags:科技,空间重构、动线规划、功能分区、品牌标识、悬浮吊顶装置、通透隔断、采光、温润材质、效率与舒适、蓝色、灵动流畅

Syscom Engineering索非亚办公室,SOFT CASE STUDIO设计团队巧妙地将一个混乱的工作空间转变为功能完善、与品牌形象契合的环境,通过强调直观流畅的动线与温暖材质,有效提升了员工的工作效率与身心健康。

Syscom Engineering索非亚办公室:蓝色美学

Syscom Engineering是一家保加利亚科技公司,在系统集成、电信及城市环境智能基础设施解决方案实施领域拥有多年专业经验。

在Syscom索非亚办公室的设计项目中,设计团队面临一项核心挑战:如何在工位数量不变的前提下,将一个功能缺失、布局杂乱的开放式空间——原本没有前台、没有厨房及休闲区——重新规划为分区明确、流线清晰、符合现代需求的高效办公环境。本案旨在为现代科技团队打造一个兼具效率与温度的工作场所,既承载企业品牌身份,又为日常运营提供顺畅、可靠的空间支持。

设计策略的核心在于将空间重组为沿清晰动线分布的明确功能分区。接待区、工作区、厨房、会议室及休闲区均经过细致规划,确保各区域衔接流畅,员工在办公室内的通行与定位直观且高效。

Syscom Engineering索非亚办公室:蓝色美学 Syscom Engineering索非亚办公室:蓝色美学 Syscom Engineering索非亚办公室:蓝色美学

为实现空间区隔的同时又不影响自然采光,设计团队引入了白色金属框架搭配磨砂玻璃的隔断。这些构件巧妙地划分了不同功能区域,在保持空间开阔通透感的同时,避免了封闭压抑的氛围。

Syscom Engineering索非亚办公室:蓝色美学 Syscom Engineering索非亚办公室:蓝色美学

一个突出的建筑设计语言是采用Syscom品牌蓝色标识色的悬浮吊顶装置。它既是视觉焦点,也是空间引导,将不同区域自然衔接,并引导使用者在室内空间顺畅移动。蓝色吊顶同时强化了企业品牌形象,赋予空间独特的个性标识。

Syscom Engineering索非亚办公室:蓝色美学 Syscom Engineering索非亚办公室:蓝色美学 Syscom Engineering索非亚办公室:蓝色美学 Syscom Engineering索非亚办公室:蓝色美学 Syscom Engineering索非亚办公室:蓝色美学 Syscom Engineering索非亚办公室:蓝色美学

材质在营造办公室氛围中起着核心作用。温润的木饰面、柔软的纺织地毯以及点缀其中的绿植,共同营造出舒适宜人的环境,在高效工作与身心健康之间取得平衡。充足的自然光线与精心设计的照明方案进一步提升了空间质感,营造出明亮开阔、充满活力的办公氛围。

最终呈现的是一个协调统一、高效实用、且契合品牌形象的办公空间,精准契合了现代科技公司的需求。从动线规划与隔断设计,到色彩点缀与材质选择,每一个设计决策都体现了对功能性与美学品质的双重追求,最终交付了一个既务实高效又时尚灵动的办公环境。

Syscom Engineering索非亚办公室:蓝色美学 Syscom Engineering索非亚办公室:蓝色美学 Syscom Engineering索非亚办公室:蓝色美学 Syscom Engineering索非亚办公室:蓝色美学 Syscom Engineering索非亚办公室:蓝色美学 Syscom Engineering索非亚办公室:蓝色美学

编译:时尚办公网,转载请注明。