英国Merseyway创新中心:破局闲置商铺,赋能创业梦想

Merseyway Innovation Centre Stockport By 5plus Architects

整理:时尚办公网 | 发布时间:2025年11月20日
英国Merseyway创新中心:破局闲置商铺,赋能创业梦想
设计:5plus Architects
地址:英国 斯托克波特
面积:1,394 平方米
时间:2024年
摄影:5plus Architects
Tags:联合办公,零售空间改造再利用、服务式办公、微型初创企业孵化、低碳、灵活成长型空间、自然通风、环保建材、能耗升级优化、建筑优化

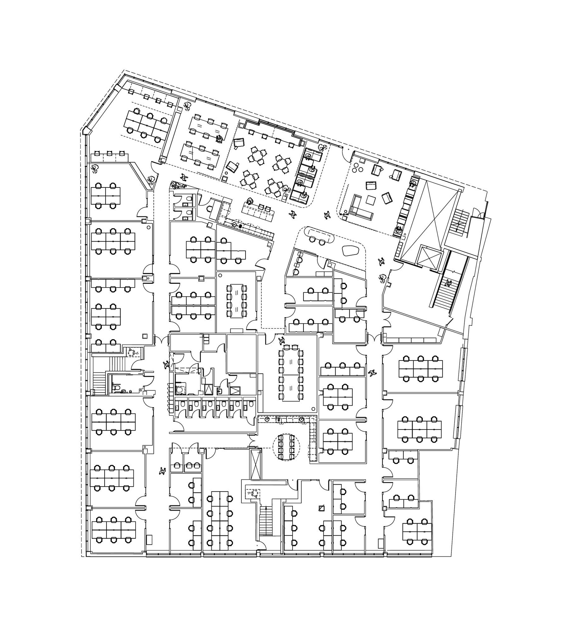
Merseyway创新中心通过对现有闲置零售空间的改造再利用,打造了一个全新的共享办公空间,通过重新规划为初创企业和现有小型企业提供灵活的服务式办公室及共享办公场所。本案由5plus Architects设计团队精彩呈现。

英国Merseyway创新中心:破局闲置商铺,赋能创业梦想

该中心位于Merseyway购物中心的一层,直面Merseyway主街。它提供了一个全新的共享工作空间,将原有的闲置零售区域重新利用,打造了一个地处中心、交通便利的商业创新中心。其服务设施包括:

· 商务休息区:为入驻中心的客户与访客提供交流与发展的平台。

· 联合办公区:提供可预订工位,服务于微型、小型企业或远程办公的个人。对一些人而言,这是发展其新业务的第一步。

· 初创企业个人/办公室:提供共享或独立办公室,可容纳1至4人,面向需要孵化空间和支持的新创/年轻企业。

· 成长型空间/办公室:面向规模较大的企业,可容纳4至10个工位。

· 会议室及配套空间:包括可预订的会议室、厨房及福利设施房间。

英国Merseyway创新中心:破局闲置商铺,赋能创业梦想 英国Merseyway创新中心:破局闲置商铺,赋能创业梦想 英国Merseyway创新中心:破局闲置商铺,赋能创业梦想 英国Merseyway创新中心:破局闲置商铺,赋能创业梦想 英国Merseyway创新中心:破局闲置商铺,赋能创业梦想 英国Merseyway创新中心:破局闲置商铺,赋能创业梦想 英国Merseyway创新中心:破局闲置商铺,赋能创业梦想

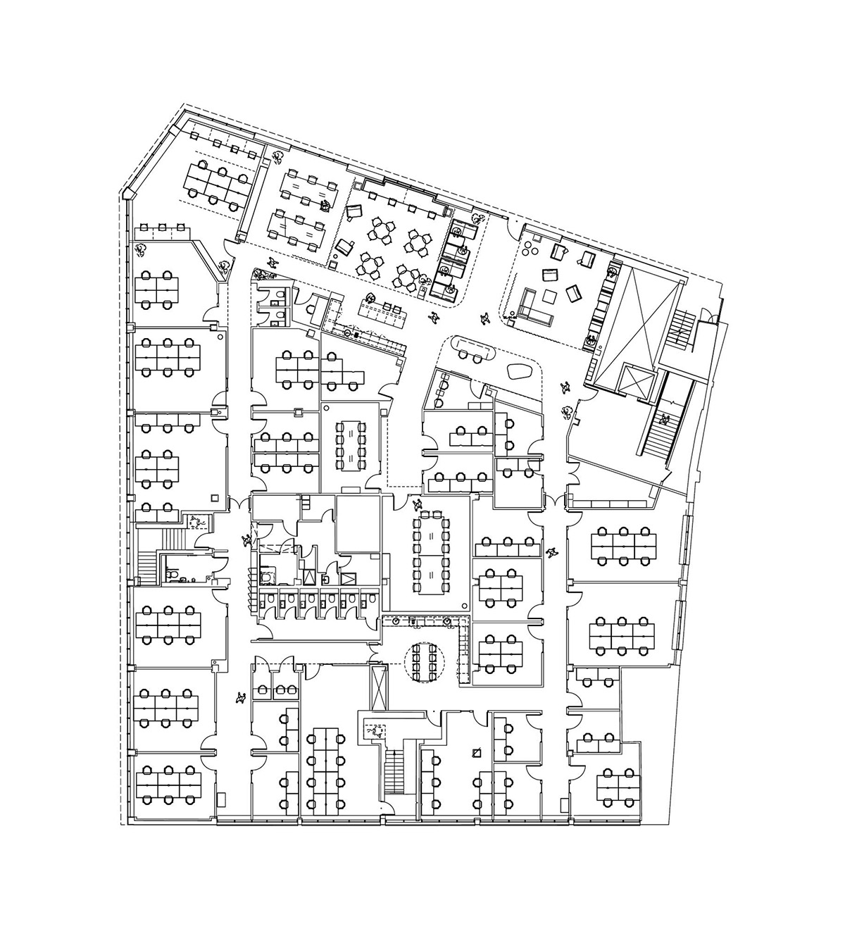
除了对一楼空间进行内部重新规划和装修外,设计工作还包括对建筑外围护结构进行重大改造,增加了大面积的玻璃窗,为内部办公区域提供更佳的自然采光,并对原有建筑结构进行了环保升级。

在底层面向Merseyway大街的位置新建了一个入口,作为通往一楼空间的新大门,访客可经由翻新后的原有电梯和楼梯进入。该底层入口空间还设有4个安全自行车停车位以及供骑行者/用户使用的储物/烘干房。

英国Merseyway创新中心:破局闲置商铺,赋能创业梦想 英国Merseyway创新中心:破局闲置商铺,赋能创业梦想 英国Merseyway创新中心:破局闲置商铺,赋能创业梦想 英国Merseyway创新中心:破局闲置商铺,赋能创业梦想 英国Merseyway创新中心:破局闲置商铺,赋能创业梦想 英国Merseyway创新中心:破局闲置商铺,赋能创业梦想 英国Merseyway创新中心:破局闲置商铺,赋能创业梦想 英国Merseyway创新中心:破局闲置商铺,赋能创业梦想

对空间的改造再利用采用了一种前期隐含碳较低的方法,同时,对建筑围护结构的重大升级也显著降低了运营中的能源需求。

与此理念一致,沿外围的服务式办公空间被设计为自然通风,仅在未来租户有需要时,才加装机械通风热回收系统。现有的疏散楼梯被保留,供底层和地下层用户共同使用。整个空间都将铺设新的建筑设备系统。

在空间设计中,设计团队摒弃了非必要的材料(例如吊顶),并选用了那些再生材料含量高、经久耐用且维护需求低的建材。

英国Merseyway创新中心:破局闲置商铺,赋能创业梦想 英国Merseyway创新中心:破局闲置商铺,赋能创业梦想 英国Merseyway创新中心:破局闲置商铺,赋能创业梦想 英国Merseyway创新中心:破局闲置商铺,赋能创业梦想 英国Merseyway创新中心:破局闲置商铺,赋能创业梦想 英国Merseyway创新中心:破局闲置商铺,赋能创业梦想 英国Merseyway创新中心:破局闲置商铺,赋能创业梦想 英国Merseyway创新中心:破局闲置商铺,赋能创业梦想

编译:时尚办公网,转载请注明。